上海恒點傳動設備有限公司
加微信聯系 恒點減速機QQ2:51228482
[HTML] [XML]  産品展示産品展示-RSS  新聞中心新聞中心-RSS  技術支持技術支持-RSS
産品分類: 減速機蝸輪絲杆升降機轉向箱蝸輪蝸杆減速機齒輪減速機行星齒輪減速機擺線針輪減速機無級變速機大功率減速器
上海恒點傳動設備有限公司
資訊分類
和産品相關的技術文章
當前位置:網站首頁 > 技術支持 > 輥道電機減速器産品分類(JB/T5562-91)

輥道電機減速器産品分類(JB/T5562-91)

Tags: P系列行星齒輪減速器    發布時間: 2024-04-19
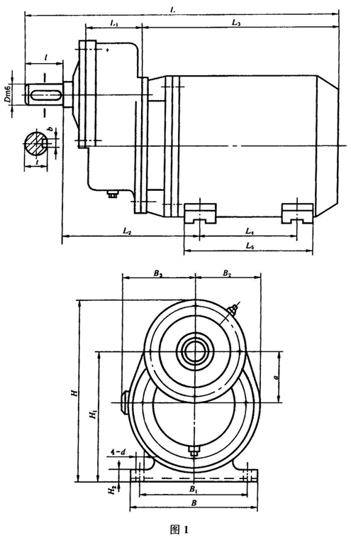
1 YZD系列電(diàn)機(jī)減速器的型式、尺寸見圖1、表1。
    2 YGL、YZL系列電(diàn)機(jī)減速器的型式、尺寸見圖2、表2。
    3 YGX、YZX系列電(diàn)機(jī)減速器的型式、尺寸見圖3、表3。
輥道電機減速器産品分類
表1                         mm
型号
a
L
B
H
L1
L2
L3
L4
L5
B1
B2
B3
H1
H2
D
(m6)
l
b
t
d
質量
kg
YZD112M107
75
≤480
250
330
85
192
305
140
235
190
125
125
190
15
35
58
10
38
12
70
YZD132M110
100
≤633
275
355
115
270
401
178
260
216
140
145
236
17
45
82
14
48.5
12
119
YZD132M210
100
≤633
275
355
115
270
401
178
260
216
140
145
236
17
45
82
14
48.5
12
125
輥道電機減速器産品分類
表2                               mm
型号
中心距
L
B
H
L1
L2
L3
L4
L5
B1
B2
B3
H1
H2
H3
H4
H5
H6
R
D(m6)
l
b
t
d
質量
kg
高速級a1
低速級a2
YGL132M117
75
100
695
320
333
158
392
30
270
330
250
70
220
200
120
132
265
28
133
155
45
82
14
48.5
24
150
YGL132M217
75
100
695
320
333
158
392
30
270
330
250
70
220
200
120
132
265
28
133
155
45
82
14
48.5
24
160
YGL160L127
118
150
975
482
460
217
568
33
350
410
380
90
250
300
145
160
315
32
160
218
65
105
18
69
28
350
YGL180L127
118
150
955
482
485
217
548
33
350
410
380
90
290
300
145
185
370
32
160
218
65
105
18
69
28
378
YZL132M117
75
100
734
320
333
158
431
30
270
330
250
70
-
200
120
143
285
28
133
155
45
82
14
48.5
24
142
YZL132M217
75
100
734
320
333
158
431
30
270
330
250
70
-
200
120
143
285
28
133
155
45
82
14
48.5
24
154
YZL160M127
118
150
876
480
460
217
464
33
350
410
380
90
-
300
145
163
325
32
160
218
65
105
18
69
28
272
YZL160M227
118
150
876
480
460
217
464
33
350
410
380
90
-
300
145
163
325
32
160
218
65
105
18
69
28
285

    注 :當需要降低總高H時,可去掉吊環螺釘,並制成平頂,H6降爲H2

輥道電機減速器産品分類

表3                                  mm
型号
L
B
H
L1
L2
L3
L4
L5
B1
B2
B3
H1
H2
H3
H4
R
D
(m6)
l
b
t
d
質量
kg
YGX132M111
698
280
307
268
340
33
190
240
220
60
220
140
265
132.5
22
133
50
82
14
53.5
20
142
YGX132M211
698
280
307
268
340
33
190
240
220
60
220
140
265
132.5
22
133
50
82
14
53.5
20
158
YGX132M121
716
305
325
286.5
340
25.5
205
265
235
65
220
140
265
132.5
25
140
60
105
18
64
25
165
YGX132M221
716
305
325
286.5
340
25.5
205
265
235
65
220
140
265
132.5
25
140
60
105
18
64
25
181
YGX160L141
978
380
425.5
373
486
48
250
310
320
75
250
180
315
157.5
33
180
80
130
22
85
28
323
YGX132M122
825
305
325
382
340
27
280
340
235
65
220
140
265
132.5
25
140
60
105
18
64
25
167
YGX132M242
907
380
425.5
465
340
40
355
415
320
75
220
180
265
132.5
33
180
75
105
20
79.5
28
238
YGX160L152
1195
420
465
590
486
62
445
535
360
75
250
200
315
157.5
35
200
90
130
25
95
28
446
YZX132M121
746
305
363
286.5
370
25.5
205
265
235
65
-
140
285
142.5
25
140
60
105
18
64
25
153
YZX132M221
746
305
363
286.5
370
25.5
205
265
235
65
-
140
285
142.5
25
140
60
105
18
64
25
155
YZX160M141
945
380
440
373
453
48
250
310
320
75
-
180
325
162.5
33
180
80
130
22
85
28
247
YZX132M242
946
380
403
465
370
40
355
415
320
75
-
180
285
142.5
33
180
75
105
20
79.5
28
222
YZX160M152
1061
420
465
590
365
62
445
535
360
75
-
200
325
162.5
35
200
90
130
25
95
28
360
上一篇 上一篇: 輥道電機減速器代号與标志(JB/T5562-91)
下一篇 下一篇: 輥道電機減速器引用标準(JB/T5562-91)
相關新聞文章 > 查看更多
O型圈損壞的原因和措施-工作條件不當 2026-02-06
工業齒輪油在使用中應注意什麽? 2025-06-19
錐齒輪承載能力計算方法第 2 部分:齒面接觸疲勞(點蝕)強度計算潤滑油膜影響系數ZL、ZV、ZR(GB/T10062.2-2003) 2025-05-13
平面二次包絡環面蝸杆減速器系列、潤滑和承載能力減速器的潤滑(GB/T16444-1996) 2025-03-26
什麽是軸承的互換性 2024-12-23
什 麽 是 滾 動 軸 承 2024-12-17
什麽是軸承的特征壽命 2024-10-29
步進電機的外表溫度允許達到多少? 2024-09-16
圓柱齒輪檢驗實施規範第2部分 :徑向綜合偏差、徑向跳動、齒厚和側隙的檢驗徑向跳動的測量、偏心量的確定(GB/Z18620.2-2002) 2024-08-22
漸開線圓柱齒輪精度齒輪副的檢驗和要求、側隙(GB10095-88) 2024-07-18
圓弧圓柱齒輪精度精度等級、齒坯要求(GB/T15753-1995) 2024-05-21
輥道電機減速器産品分類(JB/T5562-91) 2024-04-19
返回頂部 關閉本頁】 【打印本頁
電 話:021-22815912  021-22816186  傳 真:021-32050712   郵箱:sales@021jsj.cn  減速機 絲杆升降機 轉向箱 蝸輪蝸杆減速機
Copyright©2009-2026上海恒點傳動設備有限公司 版權所有  地址:上海市金山區亭林鎮林寶路39号  郵編:200442  滬ICP備10206998号-2 
友情鏈接機械設備網 | 渦街流量計 | 輸送機 | 變頻控制櫃 | 破碎機 | 工業同城 | 手持終端 | 柴油發電機 | uv平闆打印機 | 風淋室 | QUV | 防火門 | 九愛圖紙 | 感應加熱設備 | 輸送帶廠家 | 噪聲治理 | 西門子plc | 拖鏈電纜 | AGV | 機械雜志 | 現代機械 | UWB高精度定位 |